Sc Linea
Sc Linea
Ampliamento di edificio residenziale con impianto a corte
Ampliamento di edificio residenziale con impianto a corte
Questo progetto è stato realizzato a Mira (VE) nel 2012.
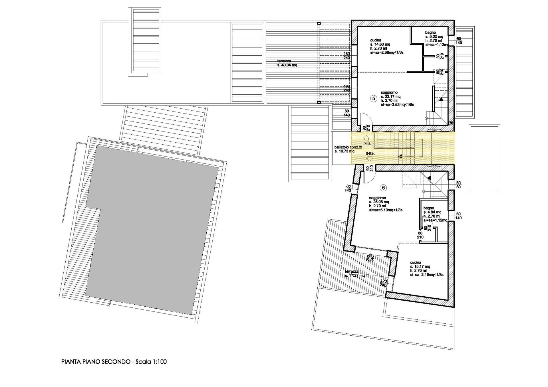
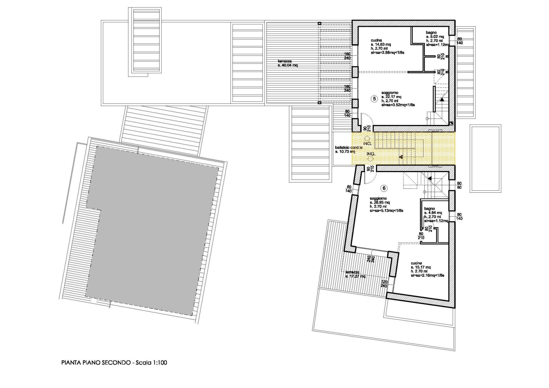
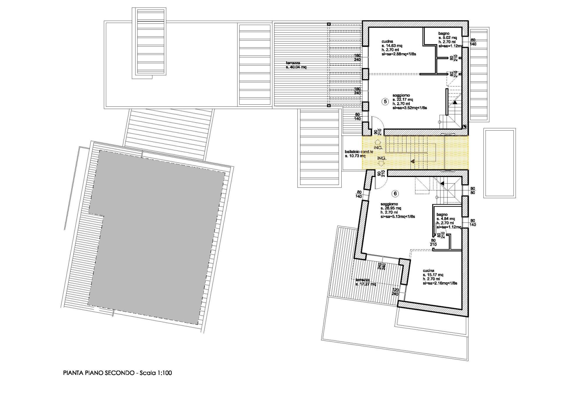
Il progetto consiste nell'ampliamento di un edificio esistente ad uso residenziale. Il nuovo corpo di fabbrica, costituito da 6 unità abitative, sarà edificato in continuità con l’esistente, costituendo insieme allo stesso una nuova aggregazione edilizia che presenterà un impianto planimetrico a corte.
L'incarico consisteva nella progettazione preliminare, definitiva ed esecutiva e nella direzione lavori.






