BiDue
Nuova costruzione di due edifici bifamiliari
Nuova costruzione di due edifici bifamiliari
Questo progetto è stato realizzato a Mirano (VE) nel 2009.
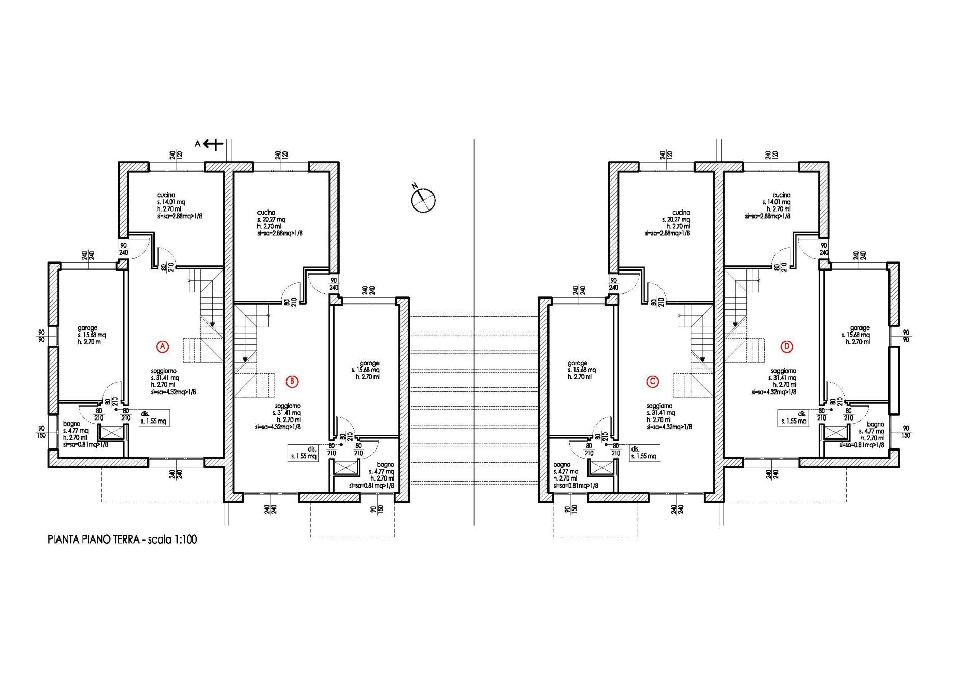
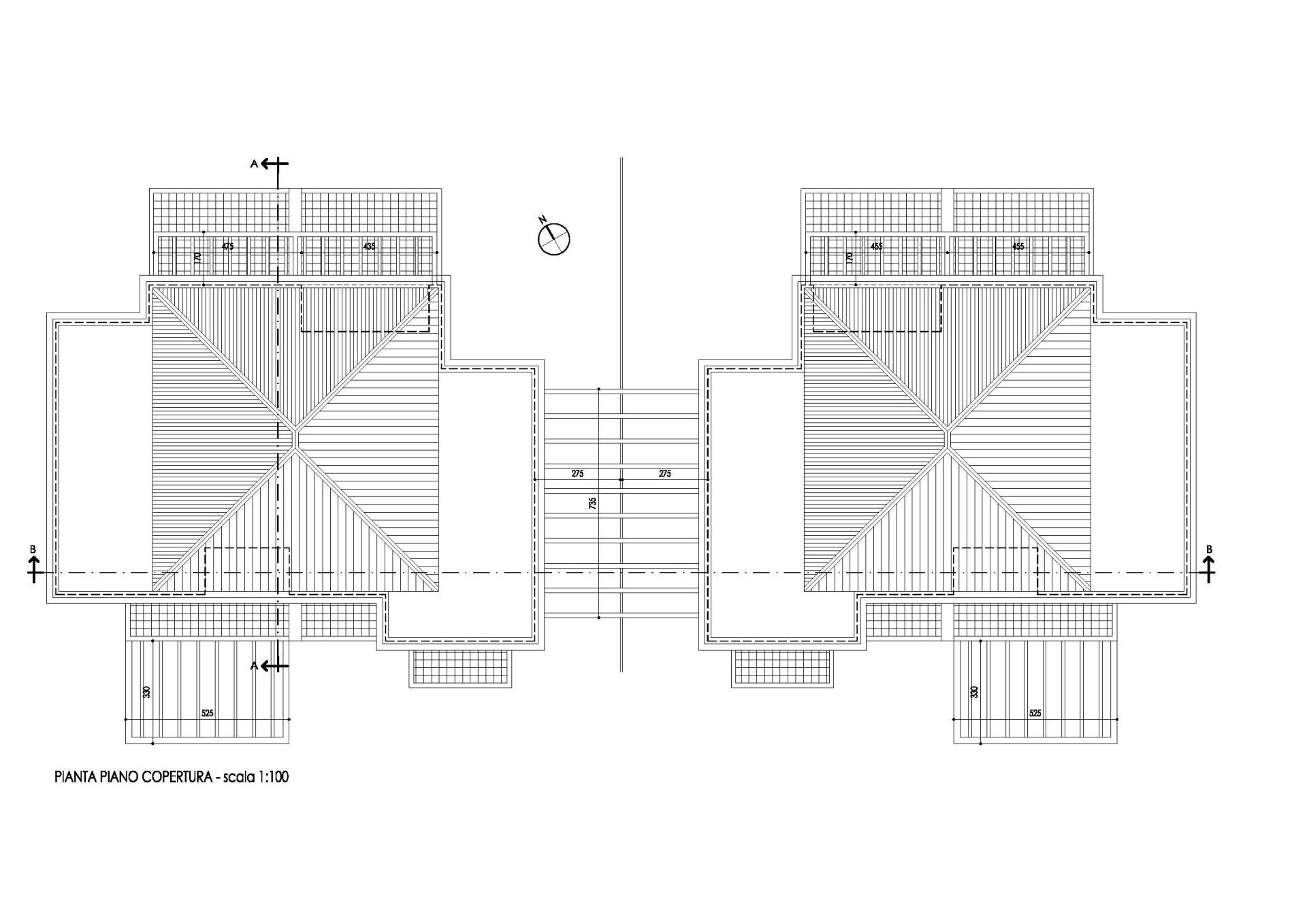
Il progetto consiste nella realizzazione di due edifici bifamiliari su due livelli fuori terra, posti in sequenza all’interno di un lotto urbano di forma longitudinale.
L'incarico consisteva nella progettazione preliminare, definitiva ed esecutiva e nella direzione lavori.










